A ház egy házaspár és két gyermekük részére épült.
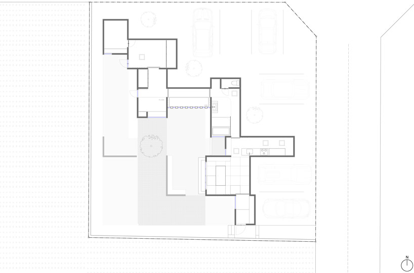
A fő építészeti koncepció a megrendelő igényeiből fakadt: a család mindenképpen ragaszkodott hozzá, hogy a telken több vendég gépjármű elhelyezésére is legyen igény. Ezért az épület ketté osztja a területet, így két fő udvar alakul ki: egy az épület utca felőli oldalán -itt oldották meg a parkolás kérdését- egy pedig a hátsó részen -ez lett a család privát kertje.
A telepítésen kívül a ház érdekessége még, hogy minden helyiség egy-egy önálló kubusba került, melynek vízszintes dimenzióit, belmagasságát, nyíláskiosztását, belső burkolatát és elhelyezkedését, kapcsolatait is a funkció határozta meg. Így például a nappali belmagassága nagyobb, a tanulószoba pedig apró nyílásokat kapott, hogy ne vonják el a gyermekek figyelmét az udvaron történő események, stb. A kubusok tolóajtókkal kapcsolódnak egymáshoz, így lehetőség van szeparálni a tereket, de igény szerint akár az egész ház átlátható, szabadon bejárható. Így a használat során folyton változó vizuális ingerek, hangok, visszhangok, árnyékjátékok és illatok teremtik meg a belső terek dinamizmusát.
Hogy az épület ne essen szét egymás mellé helyezett dobozokra, a külső burkolat mindenhol azonosan fémlemezből készült. Azonban a fémlemez mintázata, felhelyezésének módja más-és más, ezzel utalva az eltérő belső világra.
A fő építészeti koncepció a megrendelő igényeiből fakadt: a család mindenképpen ragaszkodott hozzá, hogy a telken több vendég gépjármű elhelyezésére is legyen igény. Ezért az épület ketté osztja a területet, így két fő udvar alakul ki: egy az épület utca felőli oldalán -itt oldották meg a parkolás kérdését- egy pedig a hátsó részen -ez lett a család privát kertje.
A telepítésen kívül a ház érdekessége még, hogy minden helyiség egy-egy önálló kubusba került, melynek vízszintes dimenzióit, belmagasságát, nyíláskiosztását, belső burkolatát és elhelyezkedését, kapcsolatait is a funkció határozta meg. Így például a nappali belmagassága nagyobb, a tanulószoba pedig apró nyílásokat kapott, hogy ne vonják el a gyermekek figyelmét az udvaron történő események, stb. A kubusok tolóajtókkal kapcsolódnak egymáshoz, így lehetőség van szeparálni a tereket, de igény szerint akár az egész ház átlátható, szabadon bejárható. Így a használat során folyton változó vizuális ingerek, hangok, visszhangok, árnyékjátékok és illatok teremtik meg a belső terek dinamizmusát.
Hogy az épület ne essen szét egymás mellé helyezett dobozokra, a külső burkolat mindenhol azonosan fémlemezből készült. Azonban a fémlemez mintázata, felhelyezésének módja más-és más, ezzel utalva az eltérő belső világra.
Használók és funkciók:
Elemzett állapot: Eredeti
Elemzett használat: Szokásos
Használók száma (fő)
Lakók: 4
Vendégek: 0
Kiszolgálók: 0
Összesen: 4
Alapterületek (m2)
Zárt térben: 86
Fedett térben: 0
Nyitott térben: 54
Összesen: 140
Fajlagos alapterületek (m2/fő)
Zárt térben: 21,5
Fedett térben: 0
Nyitott térben: 13,5
Összesen: 35
Lakófunkciók
Lakófunkciók zárt térben: Közös tevékenységek, Közös tárolás, Mosás, Főzés, Étkezés, Egyéni tevékenységek, Alvás, Egyéni tárolás, Fürdés, WC használat,
Lakófunkciók fedett térben:
Lakófunkciók nyitott térben: Közös tevékenységek, Egyéni tevékenységek
Képek, rajzok, források:
Fényképek: fotók
Térképek: google maps
Hely és idő:
Történelmi korszak: 2001-2020
Történelmi alkorszak: 2011-2015
Földrajzi régió: Kelet-Ázsia
Földrajzi alrégió: Japán
Éghajlati övezet: Kontinentális
Jellemzők:
Fizikai közeg: Földön
Használat időtartama: Évtizedek
Helyhez kötöttség: Állandó
Fajlagos alapterület: 15-40 m2
Használók közössége: Család
Használók munkája: N/A
Használók osztálya: Felső közép
Jellemző anyagok: Fa, Fém, Üveg, Egyéb
Létrehozás, átalakítás:
Készítés ideje: 2011 április
Készítés helye: Aichi, Japán
Tervezés módja: Egyedi
Tervező: Katsutoshi Sasaki
Létrehozás módja: Szakmai
Kivitelező: N/A
Módosítás ideje: -
Módosítás tervezője: -
Az adatlapot
készítette: Pallósi Katalin | 2012 05 13
módosította: ...... ...... | 2012 ... ...

Nincsenek megjegyzések:
Megjegyzés küldése
Megjegyzés: Megjegyzéseket csak a blog tagjai írhatnak a blogba.